





Summary
LZB/LZJ series glass rotameter are widely used in chemical industry, petroleum, light industry, medicine, environmental protection, food, measurement, testing and scientific research institutes. They are used to measure the flow rate of single-phase non-pulse fluid (liquid or gas).
LZB/( )F/LZJ-( )F series anti-corrosive glass rotameter have a good corrosion resistance, and can be used to measure acid (except hydrofluoric acid), alkali, oxidizer and other corrosive gases or liquid. They are suitable for chemical industry, pharmacy, papermaking, sewage disposal etc.
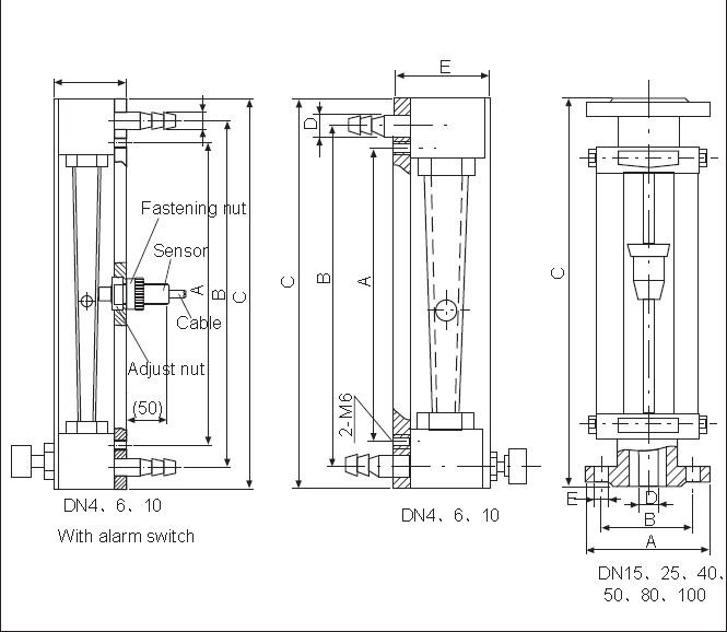
Outline and Installation Size:
Fig.1
|
DN(mm) |
A |
B |
C |
D |
E |
Connection Type |
|
4 |
178 |
204 |
230 |
Φ10 |
38.5×33 |
Hose |
|
6 |
178 |
204 |
230 |
Φ10 |
42×33 |
Hose |
|
10 |
178 |
208 |
244 |
Φ12 |
45×40 |
Hose |
|
15 |
Φ95 |
Φ65 |
470 |
Φ15 |
4-Φ14 |
Flange |
|
25 |
Φ115 |
Φ85 |
470 |
Φ25 |
4-Φ14 |
Flange |
|
40 |
Φ145 |
Φ110 |
570 |
Φ40 |
4-Φ18 |
Flange |
|
50 |
Φ160 |
Φ125 |
570 |
Φ50 |
4-Φ18 |
Flange |
|
80 |
Φ185 |
Φ150 |
660 |
Φ80 |
4-Φ18 |
Flange |
|
100 |
Φ205 |
Φ170 |
660 |
Φ100 |
4-Φ18 |
Flange |
Medium Touching Parts Materials:
|
Parts
Material |
LZB-4,6,10 |
LZB-4F |
LZB-15,25,40 |
LZJ-15,25,40,50(F) |
LZB-50,80,100 |
LZB-80,100(F) |
|
Float |
SS304 |
Agate |
SS304 |
Packing with fluoroplastic |
SS304 |
Packing with fluoroplastic |
|
Base |
Brass |
SS304 |
Cast iron lining PP |
Cast iron lining PP |
Cast iron lining with paint |
Cast iron lining PP |
|
Stop |
PP |
Fluoroplastic |
PP |
Fluoroplastic |
Cast iron |
Fluoroplastic |
|
Seals and Shim |
Nitrile rubber |
Fluororubber |
Nitrile rubber |
Fluororubber |
Nitrile rubber |
Fluororubber |
|
Guide Rod |
|
|
SS304 |
|
SS304 |
Packing with fluoroplastic |
Notes: If the medium is organic solvent,please notes in ordering.
Technical parameter
|
DN(mm) |
Model |
Measuring Range |
Length of taper pipe(mm) |
Accuracy Degree |
Allowed Measuring Fluid State |
|||
|
Water,20℃ |
Air,20℃,101325Pa |
LZB/LZJ |
LZB-()F |
Temp.(℃) |
Pressure(MPa) |
|||
|
4 |
LZB-4 |
(1~10)L/h |
(16~160)L/h |
160 |
2.5 |
4 |
-20~+120 |
≤1 |
|
6 |
LZB-6 |
(2.5~25)L/h |
(40~400)L/h |
2.5 |
||||
|
10 |
LZB-10 |
(6~60)L/h |
(100~1000)L/h |
|||||
|
15 |
LZB-15 |
(16~160)L/h |
(0.25~2.5)m3/h |
350 |
≤0.6 |
|||
|
25 |
LZB-25 |
(40~400)L/h |
(1~10)m3/h |
|||||
|
40 |
LZB-40 |
(0.16~1.6)m3/h |
(4~40)m3/h |
430 |
||||
|
50 |
LZB-50 |
(0.4~4)m3/h |
(10~100)m3/h |
450 |
||||
|
80 |
LZB-80 |
(1~10)m3/h |
(50~250)m3/h |
500 |
≤0.4 |
|||
|
100 |
LZB-100 |
(5~25)m3/h |
(120~600)m3/h |
|||||
All Stainless Steel Design LZB-()B/BF
LZB-()B0/B0F
Material of flange、floater、guide rod、bearing plate and bolts are stainless steel 304(1Cr18ni9Ti ),model is of LZB-( )B.
If Choosing touching material SS316,the model should be LZB-( )B0,which can be customized.
If Choosing stainless steel with PTFE lining,the model should be FA24-( )BF(SS316 is B0F) which can be customized.
All PTFE Design(DN3~DN10) LZB-()F4
Material of base,floater,valves are made by PTFE,and bearing plate,bolts are stainless steel 304(1Cr18ni9Ti ).